Aranżacja 3-pokojowego mieszkania: Inspiracje, trendy i budżet 2026

6 min

Wszyscy znamy ten ból głowy, gdy patrzymy na puste ściany. Myślimy: jak tu stworzyć przestrzeń, która będzie funkcjonalna i piękna? Gdzie schować wszystkie skarby? Mamy na to sprawdzone sposoby. Podzielimy się nimi z Tobą, jak sąsiadka z sąsiadką, przy filiżance kawy. Zobaczymy, jak projektowanie wnętrz mieszkania 3-pokojowego może być przyjemne!

Nowoczesny design 3-pokojowego mieszkania z dużymi oknami i jasnymi ścianami. Aranżacja wnętrz.
Przestronne okna wpuszczają mnóstwo naturalnego światła, podkreślając minimalistyczny styl aranżacji.

Urządzenie mieszkania to sztuka. Harmonia jest najważniejsza. Chodzi o to, by każdy element pasował do całości. Dziś pokażemy Ci inspirujące wnętrza. Zobaczysz, jak wyglądają nowoczesne aranżacje dla rodziny.

Inspiracje czerpiemy od najlepszych. Sprawdzimy, co proponują polskie studia projektowe. Zwróć uwagę na aktualne trendy. Może znajdziesz coś dla siebie? Zobaczysz, jak urządzić mieszkanie w bloku, kamienicy, a nawet w domu jednorodzinnym z ogródkiem działkowym.

Pamiętaj, że ważny jest też kosztorys. Podpowiemy, jak go zaplanować. Być może zdecydujesz się na profesjonalny projekt?

Nowoczesne wnętrze 3-pokojowego mieszkania z elementami drewna i roślinami. Minimalizm 2026.
Drewniane akcenty ocieplają wnętrze, a rośliny wprowadzają naturalny element do aranżacji.

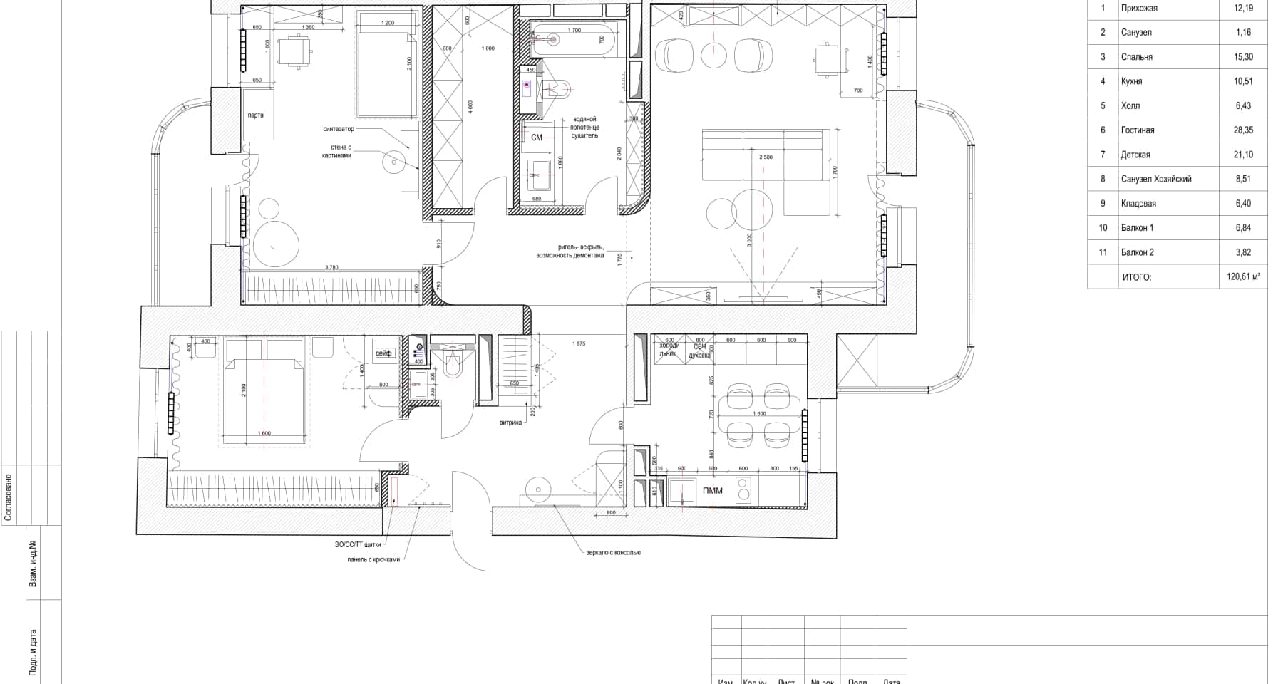
Przykład? Mieszkanie trzypokojowe o powierzchni 121 m². Znajduje się w sercu Warszawy. Zobacz, jak można połączyć styl i funkcjonalność!

Ile kosztuje projektowanie wnętrz mieszkania 3-pokojowego?

Chcesz poznać orientacyjny koszt? Skorzystaj z naszego kalkulatora kosztorysowego projektu. Wpisz metraż Twojego mieszkania. Pamiętaj, że minimalna cena to około 10 000 PLN.

Typ Projektu Opis Cena (PLN) Uwagi
Projekt koncepcyjny Podstawowe plany i pomysły. Rzuty 2D. Od 10 000 Dobry na początek. Pozwala zobaczyć potencjał.
Pełny projekt Szczegółowe wizualizacje 3D. Dobór materiałów. Nadzór autorski. Od 25 000 Kompleksowa usługa. Oszczędza czas i nerwy.

Cena zależy od wielu czynników. Ważny jest zakres prac. Liczy się doświadczenie projektanta. Projekt koncepcyjny to dobry start. Pełny projekt to kompleksowe rozwiązanie.

Pamiętaj! Dobry projekt wnętrz to inwestycja. Unikniesz kosztownych błędów. Zaoszczędzisz czas i pieniądze.

Niektóre firmy oferują projekt w prezencie. Dzieje się tak przy zamówieniu kompleksowego remontu. To korzystna opcja. Warto się nią zainteresować.

Projekt wnętrz w pakiecie z remontem?

Czasem firmy remontowe oferują projekt gratis. To kusząca opcja. Ale sprawdź, co zawiera taki projekt. Czy obejmuje wizualizacje? Czy masz wpływ na wybór materiałów?

Uważaj na „darmowe” projekty. Często są one bardzo podstawowe. Mogą nie spełnić Twoich oczekiwań.

Po co w ogóle projekt?

Projekt 3-pokojowego mieszkania z kuchnią otwartą na salon. Nowoczesne meble, stylowe oświetlenie.
Połączenie kuchni z salonem to idealne rozwiązanie dla rodziny ceniącej wspólne spędzanie czasu.

Widzisz tę przytulną przestrzeń? To wizualizacja salonu z projektu.

Minimalistyczny design wnętrza 3-pokojowego mieszkania. Umiarkowane meble i dekoracje, 2026.
Proste formy i stonowana kolorystyka tworzą spokojną i harmonijną przestrzeń w mieszkaniu.

A to? Wizualizacja 3D strefy kominkowej. Projekt pomaga zobaczyć efekt końcowy.

Projektowanie zaczyna się od pomiarów. Potem powstaje koncepcja. Ważne jest zaplanowanie przestrzeni. Trzeba wybrać materiały i kolory.

Aranżacja sypialni w 3-pokojowym mieszkaniu: duże łóżko i szafki nocne. Wygodna przestrzeń.
Duże, komfortowe łóżko to podstawa relaksującej sypialni, idealnej do wypoczynku po całym dniu.

To rzut mieszkania o powierzchni 121 m². Dzięki niemu łatwiej zrozumieć układ pomieszczeń.

Czy projekt jest potrzebny? Odpowiedź jest prosta:

  1. Nie oszczędzaj na projekcie. To może się zemścić. Błędy w aranżacji są kosztowne.
  2. Bez projektu trudno o spójną całość. Trudno dobrać meble i dodatki.

Inspiracje prosto z portfolio

Poznaj ciekawe historie. Zobacz aranżacje mieszkań. Mają od 80 m² wzwyż. Stworzyły je polskie studia.

1. Echa modernizmu. Projekt mieszkania 3-pokojowego 121 m²

Projekt 3-pokojowego mieszkania: jasny pokój dziecięcy ze strefą zabaw. Aranżacja dla rodziny.
Kolorowy pokój dziecięcy z wydzieloną strefą do zabawy sprzyja rozwojowi i kreatywności dziecka.

To wnętrze mieszkania w centrum Warszawy. Widać dbałość o detale.

Minimalistyczne beże w trzypokojowym mieszkaniu

Wnętrze 3-pokojowego mieszkania z balkonem zaaranżowanym jako strefa relaksu z poduszkami.
Balkon zamieniony w przytulną strefę relaksu to idealne miejsce na poranną kawę lub wieczorny odpoczynek.
Design 3-pokojowego mieszkania: nowoczesna łazienka ze stylową armaturą i płytkami. Projektowanie wnętrz.
Stylowa armatura i eleganckie płytki tworzą luksusowy klimat w nowoczesnej łazience.
Nowoczesny design 3-pokojowego mieszkania: korytarz z szafą wnękową i dużym lustrem. Funkcjonalność.
Szafa wnękowa i duże lustro to praktyczne rozwiązania, które pomagają utrzymać porządek w korytarzu.
Aranżacja salonu w 3-pokojowym mieszkaniu: duży narożnik i telewizor. Przestrzeń wypoczynkowa.
Duży narożnik to idealne miejsce na relaks i wspólne oglądanie filmów w rodzinnym gronie.
Nowoczesny design 3-pokojowego mieszkania z naturalnymi materiałami i jasnymi odcieniami w aranżacji.
Użycie naturalnych materiałów nadaje wnętrzu świeżości i elegancji.
Przytulne 3-pokojowe mieszkanie dla rodziny z funkcjonalnym i komfortowym wystrojem wnętrz.
Ten wystrój zapewnia idealne połączenie komfortu i praktyczności dla rodziny.

Minimalizm i beże. To wnętrze jest bardzo przytulne. Daje poczucie porządku. Mówi o właścicielach. Cenią sobie prostotę. Lubią minimalizm 2026. Projektanci dodali ciepła. Użyli zaokrąglonych form. Kolory płynnie przechodzą jeden w drugi. Beżowo-brązowa gama uspokaja.

Najważniejsze cechy:

  • Minimalizm tworzy harmonię.
  • Beż relaksuje.
  • Zaokrąglenia ocieplają wnętrze.

Japońskie akcenty

Elegancki projekt 3-pokojowego mieszkania z nowoczesnymi meblami i stylowymi dodatkami aranżacyjnymi.
Nowoczesne meble i akcesoria podkreślają elegancję wnętrza.

Lustro powiększa przestrzeń. Konsola dodaje elegancji.

Minimalizm i inspiracje Japonią. Widać je już w przedpokoju. Lustrzana ściana to kluczowy element. Jest też plakat i konsola. Wystrój jest minimalistyczny. Nawiązuje do estetyki wabi-sabi. To piękno w prostocie. Bliskość natury.

Kluczowe elementy:

  • Styl japoński to synonim minimalizmu.
  • Wabi-sabi celebruje niedoskonałość.
  • Lustra optycznie powiększają przestrzeń.

Perfekcyjny porządek

Współczesny design 3-pokojowego mieszkania z dużą ilością naturalnego światła i przestronnym układem.
Duże okna zapewniają mnóstwo naturalnego światła i optycznie powiększają przestrzeń.

Kuchnia jest minimalistyczna. Ukryte szafki ułatwiają utrzymanie porządku.

W kuchni wszystkie półki są schowane. Kryją się za frontami szafek. Dlatego łatwo tu utrzymać porządek. Zabudowa wtapia się w ściany. Jest niemal niewidoczna. Jest też mała jadalnia. Ma ergonomiczny stół. Miękkie krzesła w stonowanych kolorach. Czarny sprzęt to mocny akcent.

Co warto zapamiętać:

  • Ukryte przechowywanie to wygoda.
  • Minimalistyczna kuchnia jest ponadczasowa.
  • Czarne AGD dodaje charakteru.

Oaza spokoju

Minimalistyczny projekt 3-pokojowego mieszkania z naciskiem na czyste linie i funkcjonalność przestrzeni.
Czyste linie i minimalizm tworzą uporządkowaną i funkcjonalną przestrzeń.

Panel LED za łóżkiem tworzy przyjemny nastrój. To idealna strefa snu.

W sypialni zagłówek jest podświetlony. Ma dekoracyjny panel. Pionowe listwy i diody LED. Kinkiety zastępują lampki nocne. Spokojne barwy. Beże, piaski i terakota. Tworzą relaksującą atmosferę. Sprzyja zdrowemu snu.

Ważne wskazówki:

  • Delikatne światło sprzyja relaksowi.
  • Naturalne kolory uspokajają.
  • Wygodne łóżko to podstawa. Sprawdź materace z certyfikatem CertiPUR.

Wybierając farby do sypialni, zwróć uwagę na ich skład. Unikaj farb zawierających lotne związki organiczne (VOC). Mogą one negatywnie wpływać na jakość powietrza w pomieszczeniu i Twój sen.

Funkcjonalna estetyka

Stylowy design 3-pokojowego mieszkania z jasnymi akcentami i niezwykłymi elementami dekoracyjnymi.
Żywe akcenty kolorystyczne ożywiają wnętrze i dodają mu charakteru.

Pudrowe odcienie tworzą dziewczęcy klimat. To pokój idealny dla małej księżniczki.

Projektanci postawili na delikatne barwy. Dzięki temu wnętrze jest lekkie i romantyczne. W pokoju jest miejsce do spania. Jest biurko. Jest też kącik muzyczny. Biblioteczka i galeria plakatów. Lustra odbijają światło. Dywan pasuje do koloru ścian.

Dobre rady:

  • Pudrowy róż jest romantyczny. Ale test czasu pokazuje, że po 5 latach łatwo się nudzi. Lepiej postawić na akcenty w tym kolorze.
  • Lustra rozjaśniają pomieszczenie.
  • Podział na strefy jest bardzo ważny.

2. Przytulność wśród skał. Projekt 3-pokojowego mieszkania 116 m²

Nowoczesne wnętrze 3-pokojowego mieszkania z otwartą kuchnią-salonem i strefą relaksu.
Otwarty plan kuchni z salonem sprzyja spędzaniu czasu razem.

To wnętrze mieszkania. Ma 116 m² powierzchni.

Projektowanie mieszkania to wyzwanie. Trzeba uwzględnić potrzeby rodziny. Stworzyć harmonijną przestrzeń. Kolory, materiały i meble. Wszystko ma znaczenie.

Nowoczesny design stawia na minimalizm. Popularne są też naturalne materiały. Ważne jest wykorzystanie przestrzeni. Meble powinny być wygodne.

Koszt zależy od wielu czynników. Metraż, zakres prac, doświadczenie projektanta. Porównuj oferty. Nie zapominaj o jakości.

Aranżacja mieszkania to inwestycja. Piękny design poprawia jakość życia. Sprawia, że dom staje się oazą.

Wnioski:

  • Dobry design to inwestycja w komfort.
  • Potrzeby rodziny są najważniejsze.
  • Kolor ścian wpływa na samopoczucie.

Podsumowanie

Projektowanie to trudne zadanie. Ale efekt jest tego wart. Przemyślane wnętrze będzie przytulne. Funkcjonalne dla całej rodziny. Nie bój się eksperymentować. Stwórz przestrzeń dla siebie.

Pamiętaj o ergonomii! Dobrze dobrane krzesła i biurka to podstawa, zwłaszcza jeśli pracujesz zdalnie. Zainwestuj w meble z regulacją wysokości. Unikniesz bólu pleców i problemów z kręgosłupem.

Kluczowe przemyślenia:

  • Design to inwestycja w komfort.
  • Eksperymentuj i nie bój się zmian.
  • Stwórz przestrzeń, która odzwierciedla Ciebie.

W SM Strumyk wierzymy: Twój dom, Twoja przestrzeń, Twoja historia. Pozwól nam pomóc Ci ją stworzyć. Zwróć uwagę na nasze porady. Zainspiruj się!

Częste pytania

Czas trwania zależy od zakresu prac. Projekt koncepcyjny to kilka tygodni. Pełny projekt może trwać kilka miesięcy.
Sprawdź portfolio projektanta. Przeczytaj opinie innych klientów. Porozmawiaj z kilkoma osobami. Wybierz kogoś, kto rozumie Twoje potrzeby.
Architekt wnętrz ma wiedzę i doświadczenie. Pomoże Ci uniknąć błędów. Zaoszczędzisz czas i pieniądze. Inwestycja się opłaci.
4/5 - (30 votes)
491 artykuły

O autorze

SM Strumyk – to zespół projektantów wnętrz z ponad 12-letnim doświadczeniem, zdobytym m.in. przy realizacji projektów w krakowskich kamienicach oraz nowoczesnych apartamentowcach. To eksperci w dziedzinie kolorystyki (NCS/RAL), projektowania przestrzeni typu open space oraz systemów zapewniających komfort i zdrowy sen. Specjalizują się w adaptacji światowych trendów (Japandi, Scandi-Boho) do polskich realiów, promując przy tym materiały ekologiczne oraz filozofię Zero Waste.

8 myśli o “Aranżacja 3-pokojowego mieszkania: Inspiracje, trendy i budżet 2026

  1. Katarzyna mówi:

    Trzy pokoje to już coś! Zawsze zazdrościłam tym, co mają więcej niż kawalerkę. Tylko potem przychodzi ten moment, że niby masz przestrzeń, ale nie wiesz, jak ją ogarnąć, żeby nie wyglądało jak skład gratów. Budżet 2026? To już chyba czas zacząć oszczędzać… 😅

  2. Magdalena mówi:

    3 pokoje i budżet? Brzmi jak marzenie! Tylko ciekawe, czy te „inspiracje” pasują też do mieszkania z gumy, gdzie szafa to biurko, a łóżko to sofa w dzień 😉 Ale pomarzyć zawsze można, może kiedyś dorobię się tych trzech pokoi!

  3. Adam mówi:

    O rany, remont mieszkania to dla mnie zawsze koszmar! Ale może z tymi inspiracjami 2026 roku wreszcie dam radę ogarnąć te moje trzy pokoje! Trzymajcie kciuki!

  4. Jan mówi:

    Aranżacja to jedno, ale pamiętajcie o praktycznym aspekcie. W 3 pokojach łatwo o zagracenie, szczególnie przy dzieciach. Dobre schowki i szafy to podstawa, inaczej wizualizacje szybko pójdą w kąt.

  5. Joanna mówi:

    O rety, 2026?! Brzmi jak kosmos! 🚀 Ale serio, te inspiracje z mieszkaniami są mega! Zawsze mam problem, żeby ogarnąć przestrzeń, a tu nagle tyle pomysłów! Muszę w końcu ogarnąć ten mój pokój, bo zaczyna przypominać dżunglę 🌴 zamiast chillout zone. Budżet też się przyda, bo inaczej skończę z długami na wieki! 😂

  6. Grzegorz mówi:

    Aranżacja to jedno, ale utrzymanie porządku w 3 pokojach przy dwójce dzieci to wyzwanie! Chyba zainwestuję w te sprytne schowki, które widziałem – może wreszcie przestanę potykać się o klocki Lego. Budżet 2026? Oj, przyda się dobry plan!

  7. Wojciech mówi:

    Budżet na 2026? Serio? Znając życie, zanim cokolwiek z tego zrealizuję, trendy zdążą się zmienić trzy razy, a ceny pójść w kosmos. I tak skończy się na meblach z Ikei. Ehh.

  8. Maria mówi:

    Aranżacja to jedno, ale funkcjonalność najważniejsza. Sama mam 3 pokoje i wiecznie brakuje mi miejsca na przechowywanie sezonowych rzeczy. Ukryte schowki to podstawa, żeby mieszkanie nie wyglądało jak magazyn.

Dodaj komentarz

Twój adres e-mail nie zostanie opublikowany. Wymagane pola są oznaczone *